Identifícate

¡Ya me acuerdo!

Te hemos enviado el código de recuperación por e-mail. Puedes seguir el enlace en el mismo e-mail o introducirlo a continuación.

¡Recuerdo mi contraseña!

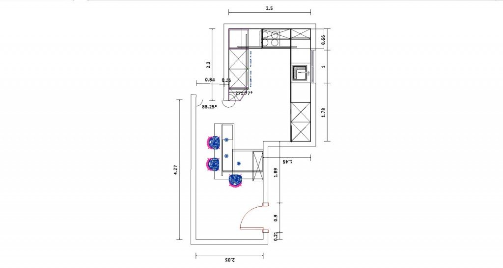
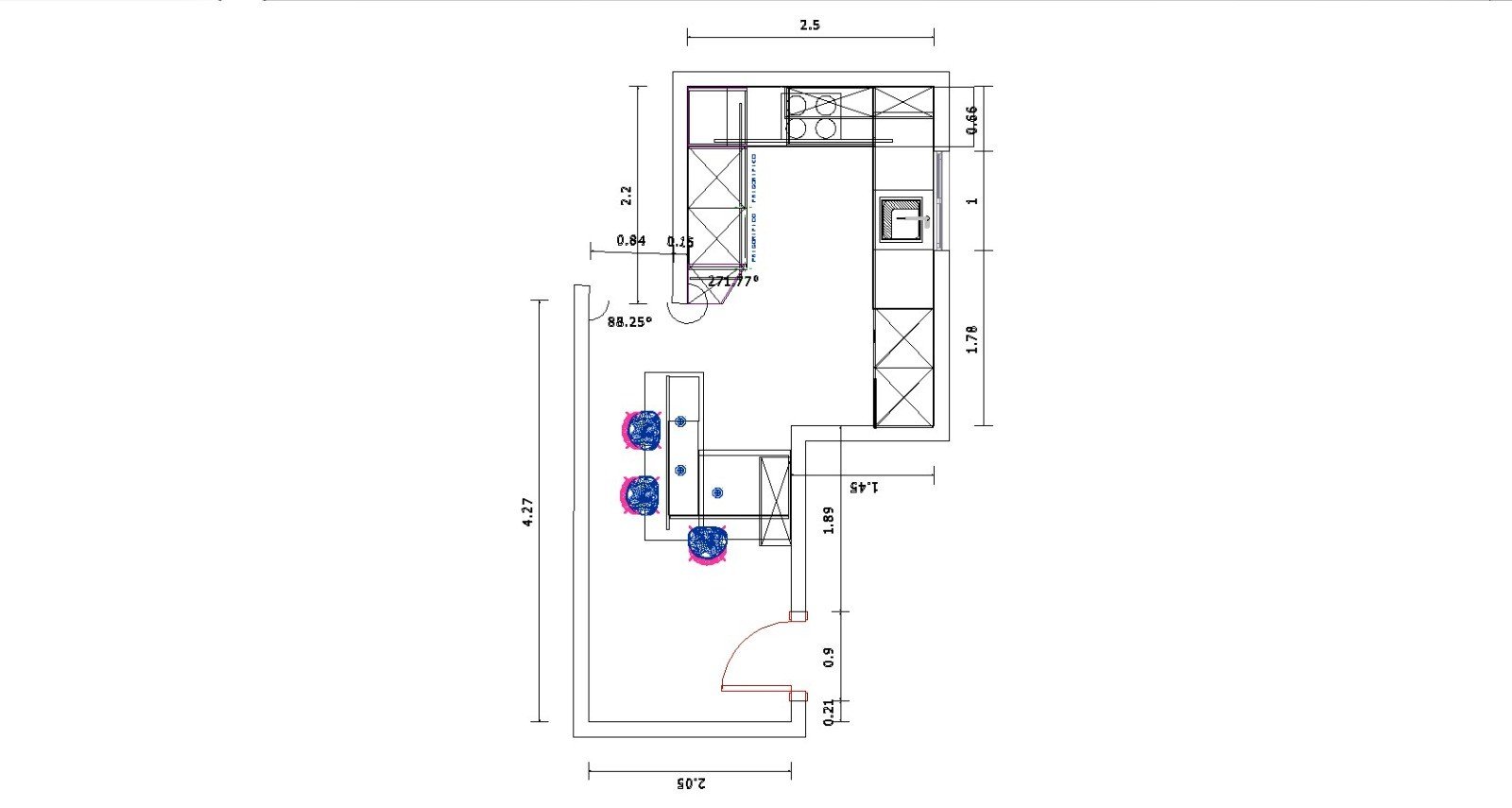
Cocina de forma irregular

27 MARZO 2026

Nuevo proyecto de mobiliario de cocina: un diseño a medida con dos zonas diferenciadas:

  • Área de cocina
  • Barra con desayunador en península

 

Proyecto prácticamente finalizado, pendiente únicamente de la colocación del porcelánico.

En tienda contamos con exposición, y variedad de tipos de puertas, cristales, tiradores y todo lo necesario para que tu cocina sea única.

Os esperamos, pero recuerda traer medidas y pedir cita para una mejor atención.